컨벤션(천안)
그랜드홀
- 신년회 · 시상식 · 학술대회 등에 적합한 세미나홀
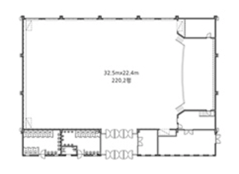
그랜드홀 시설정보
| 수용인원 | 고정식 240석 ~ 최대 400석 |
|---|---|
| 시설위치/면적 | 컨벤션센터 1F / 357㎡ |
| 용도 | 신년회 · 시상식 · 학술대회 |
| 제공기자재 | 태극기, 스크린, 빔프로젝트, 연단, 화이트보드, 유·무선마이크, 인터넷 |
| 현수막사이즈 | 950*80 |
| 준비사항 | 노트북, 레이저포인터 |
| 평면도 | ![]() |
- 컨벤션 예약 및 안내
- 예약업무 : 09:00~18:00
- ※전화상담 및 예약만 가능
호텔판촉팀(예약 및 안내)041-560-9011~5
상록홀
- 대형 세미나 · 교육 등에 적합한 세미나홀
상록홀 시설정보
| 수용인원 | 강의식 250석 |
|---|---|
| 시설위치/면적 | 컨벤션센터 2F / 380㎡ |
| 용도 | 세미나 · 교육 · 연회 |
| 제공기자재 | 태극기, 스크린, 빔프로젝트, 연단, 화이트보드, 마이크, 인터넷 |
| 현수막사이즈 | 700*90 |
| 준비사항 | 노트북, 레이저포인터 |
| 평면도 | ![]() |
- 컨벤션 예약 및 안내
- 예약업무 : 09:00~18:00
- 온라인으로는 실시간 예약이 안되시며, 전화예약 상담 가능하십니다
호텔판촉팀(예약 및 안내)041-560-9011~5
수신홀
- 중형 세미나 · 교육 등에 적합한 세미나홀
수신홀 시설정보
| 수용인원 | 강의식 90석 |
|---|---|
| 시설위치/면적 | 컨벤션센터 2F / 195㎡ |
| 용도 | 강의 · 세미나 · 교육 |
| 제공기자재 | 태극기, 스크린, 빔프로젝트, 연단, 화이트보드, 마이크, 인터넷 |
| 현수막사이즈 | 600*90 |
| 준비사항 | 노트북, 레이저포인터 |
| 평면도 | ![]() |
- 컨벤션 예약 및 안내
- 예약업무 : 09:00~18:00
- 온라인으로는 실시간 예약이 안되시며, 전화예약 상담 가능하십니다
호텔판촉팀(예약 및 안내)041-560-9011~5
아우내홀
- 중형 세미나 · 교육 등에 적합한 세미나홀
아우내홀 시설정보
| 수용인원 | 강의식 70석 |
|---|---|
| 시설위치/면적 | 컨벤션센터 2F / 195㎡ |
| 용도 | 강의 · 세미나 · 교육 |
| 제공기자재 | 태극기, 스크린, 빔프로젝트, 연단, 화이트보드, 인터넷 |
| 현수막사이즈 | 600*90 |
| 준비사항 | 노트북, 레이저포인터 |
| 평면도 | ![]() |
- 컨벤션 예약 및 안내
- 예약업무 : 09:00~18:00
- 온라인으로는 실시간 예약이 안되시며, 전화예약 상담 가능하십니다
호텔판촉팀(예약 및 안내)041-560-9011~5
사파이어홀
- 중형 세미나 · 교육 등에 적합한 세미나홀
사파이어홀 시설정보
| 수용인원 | 강의식 120석 |
|---|---|
| 시설위치/면적 | 상록호텔 별관 1F / 253㎡ |
| 용도 | 강의 · 세미나 · 교육 |
| 제공기자재 | 태극기, 스크린, 빔프로젝트, 연단, 화이트보드, 마이크, 인터넷 |
| 현수막사이즈 | 600*90 |
| 준비사항 | 노트북, 레이저포인터 |
- 컨벤션 예약 및 안내
- 예약업무 : 09:00~18:00
- 온라인으로는 실시간 예약이 안되시며, 전화예약 상담 가능하십니다
호텔판촉팀(예약 및 안내)041-560-9011~5
무궁화홀
- 중형 세미나 · 교육 등에 적합한 세미나홀
무궁화홀 시설정보
| 수용인원 | 강의식 100석 |
|---|---|
| 시설위치/면적 | 상록호텔 별관 2F / 253㎡ |
| 용도 | 강의 · 세미나 · 교육 |
| 제공기자재 | 태극기, 스크린, 빔프로젝트, 연단, 화이트보드, 마이크, 인터넷 |
| 현수막사이즈 | 600*90 |
| 준비사항 | 노트북, 레이저포인터 |
| 평면도 | ![]() |
- 컨벤션 예약 및 안내
- 예약업무 : 09:00~18:00
- 온라인으로는 실시간 예약이 안되시며, 전화예약 상담 가능하십니다
호텔판촉팀(예약 및 안내)041-560-9011~5
매실
- 소형 세미나 · 교육 · 분임장 등에 적합한 세미나홀
매실 시설정보
| 수용인원 | 강의식 50석 |
|---|---|
| 시설위치/면적 | 컨벤션센터 2F / 132㎡ |
| 용도 | 세미나 · 교육 · 분임장 |
| 제공기자재 | 태극기, 스크린, 빔프로젝트, 연단, 화이트보드, 마이크, 인터넷 |
| 현수막사이즈 | 500*90 |
| 준비사항 | 노트북, 레이저포인터 |
| 평면도 | ![]() |
- 컨벤션 예약 및 안내
- 예약업무 : 09:00~18:00
- 온라인으로는 실시간 예약이 안되시며, 전화예약 상담 가능하십니다
호텔판촉팀(예약 및 안내)041-560-9011~5
난실·국실·죽실
- 소형 세미나 · 교육 · 분임장 등에 적합한 세미나홀
난실·국실·죽실 시설정보
| 수용인원 | 강의식 30석 |
|---|---|
| 시설위치/면적 | 컨벤션센터1F(국실·죽실), 2F(난실) / 66㎡ |
| 용도 | 세미나 · 교육 · 분임장 |
| 제공기자재 | 태극기, 스크린, 빔프로젝트, 연단, 화이트보드, 마이크, 인터넷 |
| 현수막사이즈 | 500*90 |
| 준비사항 | 노트북, 레이저포인터 |
| 평면도 | ![]() |
- 컨벤션 예약 및 안내
- 예약업무 : 09:00~18:00
- 온라인으로는 실시간 예약이 안되시며, 전화예약 상담 가능하십니다
호텔판촉팀(예약 및 안내)041-560-9011~5
송실·연실·청실
- 소형 세미나 · 분임장 · 운영본부 활용 등에 적합한 세미나홀
송실·연실·청실 시설정보
| 수용인원 | U자형 12석 |
|---|---|
| 시설위치/면적 | 컨벤션센터 2F / 66㎡ |
| 용도 | 세미나 · 분임장 · 운영본부 |
| 제공기자재 | 태극기, 스크린, 빔프로젝트, 연단, 화이트보드,인터넷 |
| 현수막사이즈 | 400*90 |
| 준비사항 | 노트북, 레이저포인터 |
| 평면도 | ![]() |
- 컨벤션 예약 및 안내
- 예약업무 : 09:00~18:00
- 온라인으로는 실시간 예약이 안되시며, 전화예약 상담 가능하십니다
호텔판촉팀(예약 및 안내)041-560-9011~5
유스 대강당
- 실내 체육대회 · 대학교 MT · 종교기관 수련회 등에 적합한 시설
유스 대강당 시설정보
| 수용인원 | 의자 700석, 연회식 400석 |
|---|---|
| 시설위치/면적 | 콘도동 / 1,348㎡ |
| 용도 | 실내 체육대회 · MT · 수련회 |
| 제공기자재 | 태극기, 스크린, 빔프로젝트, 연단, 화이트보드, 인터넷 |
| 현수막사이즈 | 1000*90 |
| 준비사항 | 노트북, 레이저포인터 |
| 평면도 | ![]() |
- 컨벤션 예약 및 안내
- 예약업무 : 09:00~18:00
- 온라인으로는 실시간 예약이 안되시며, 전화예약 상담 가능하십니다
호텔판촉팀(예약 및 안내)041-560-9011~5








